Description
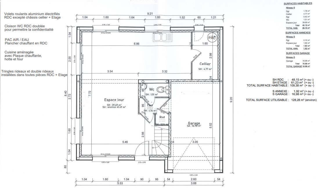
A proximité de la pharmacie de BELBEUF, pavillon neuf, individuel de 109 m² composé au RDC : Une pièce de vie de 40 m² comprenant un séjour-salon ouvert sur une cuisine AE, un cellier, un WC avec lave-mains. A l'étage : Un dégagement desservant 3 chambres avec placard dont 1 avec douche, une salle de bains, un WC indépendant.
Jardin exposé Sud-Ouest avec terrasse. Garage 1 voiture attenant et 2 places de parking privatives devant le garage.
Huisseries en aluminium et volets roulants électriques.
Chauffage par pompe à chaleur AIR-EAU (par le sol au RDC).
Disponible le 15 décembre 2025.
Caractéristiques
Honoraires : Locataire
Dépôt de garantie : 1350
Provision sur charges : 20
Surface habitable : 109m²
Surface du séjour : 39.69m²
Terrasse : 1
Chambre : 3
Salle de bain : 1
Toilette : 2


